Не упусти свой шанс! Последние акции от застройщиков  ▼

Продается 3-комнатная квартира, Шоссейная ул., 11

9 300 000 Р

Люберцы г. (Люберцы гор. округ)

Шоссейная ул.11

Дата публикации: 1 октября 2025

Дата обновления: 15 октября 2025

Телефон: 
Показать телефон

+7 (916) 196-28-26

Агентство:  ГОРОБМЕН

Этаж: 5 / 9

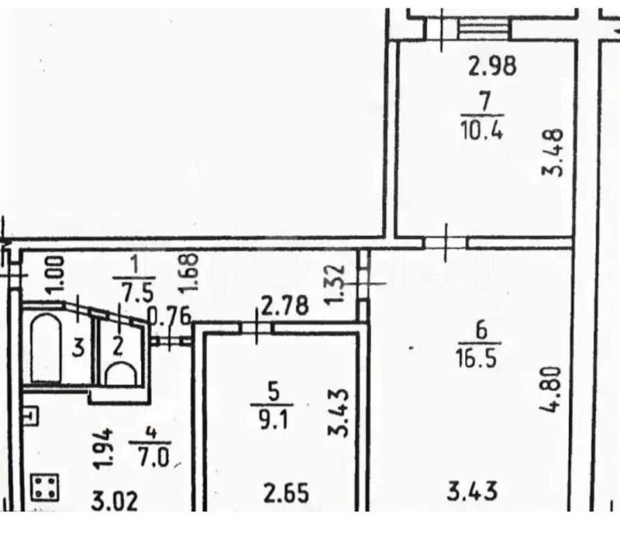
Общая: 54 м2

Жилая: 36 м2

Кухня: 7 м2

Комнаты: 16.5 10.4 9.1 м2

Балкон/лоджия: лоджия

Лифт: есть лифт

Окна: окна на улицу

Санузел: раздельный

Мусоропровод: есть

Состояние квартиры: хорошее состояние

Тип дома: панельный

Год постройки: 1972

Территория: не указано

Парковка: не указано

Статус сделки: продажа

Сделка: прямая продажа

Собственность: не указано

Основание права собственности: не указано

Описание

Продаем чистую и светлую трехкомнатную квартиру, общей площадью 54 кв.м в девятиэтажном панельном доме 1972 года постройки. Комфортный 5 этаж. Квартира не угловая. Комнаты смежно-изолированные площадью 16,5/10,4/9,1 кв.м (возможно сделать изолированными), кухня 7 кв.м, санузел раздельный, просторная, застекленная лоджия. В квартире выполнен косметический ремонт, паркетные полы в отличном состоянии, стеклопакеты. Подъезд чистый, без посторонних запахов. На лестничной площадке есть зона для размещения колясок и велосипедов.
До метро Котельники 13 минут пешком. Рядом с домом имеется вся необходимая инфраструктура: гимназия, школа, детский садик, поликлиника, аптеки, магазины, спортивный комплекс, салоны красоты, кофейни и пр. Район обжитой и очень зеленый.
Один собственник. Свободная продажа. Полная стоимость в договоре. Никто не зарегистрирован. Без обременений.
Бесплатная парковка рядом с домом. По договоренности сторон за дополнительную стоимость возможна продажа кирпичного гаража, расположенного недалеко от дома в ГСПК "Сигнал".
При желании покупателя можем оставить мебель и бытовую технику.
Подходит под ипотеку любого банка. Помощь в одобрении и получении ипотеки.
Оперативные показы.

Квартира на карте

ПанорамыКарта

Похожие объявления

Этаж: 11  Площадь: 84,3 м2

12 450 000 Р

Этаж: 5  Площадь: 56 м2

9 000 000 Р
Спецпредложения
Добавить объявление