Не упусти свой шанс! Последние акции от застройщиков  ▼

Продается 2-комнатная квартира, Рождественская ул., 6

12 400 000 Р

Люберцы г. (Люберцы гор. округ)

Рождественская ул.6

Дата публикации: 20 февраля 2026

Дата обновления: 3 апреля 2026

Телефон: 
Показать телефон

+7 (499) 372-92-13

Агентство:  МИЭЛЬ

Этаж: 22 / 25

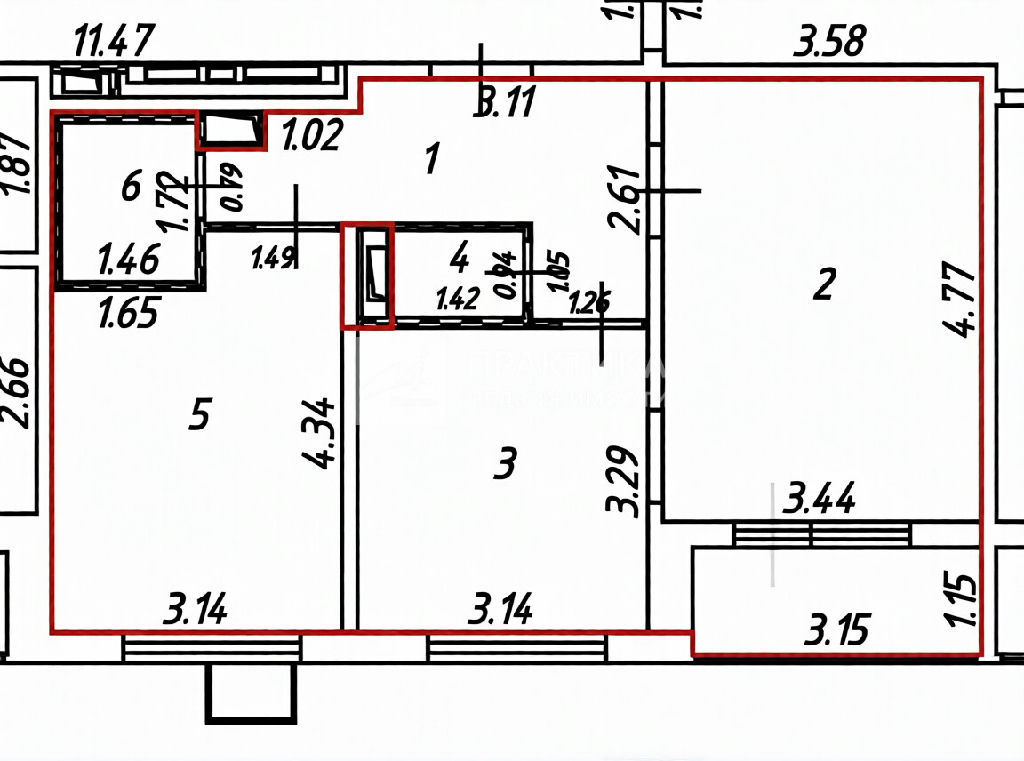
Общая: 55 м2

Жилая: 32 м2

Кухня: 13 м2

Комнаты: не указано

Балкон/лоджия: не указано

Лифт: не указано

Окна: окна на улицу

Санузел: раздельный

Мусоропровод: не указано

Состояние квартиры: евроремонт

Тип дома: панельный

Год постройки: 2021

Территория: огороженная

Парковка: не указано

Статус сделки: продажа

Сделка: альтернатива

Собственность: не указано

Основание права собственности: не указано

Описание

Код объекта: 2050104.Продается 2-х комнатная квартира в современном новом панельном доме, со стильной отделкой и мебелью вЖК "1-ый Лермонтовский" Современная отделка, качественные материалы, стильный интерьер, использованы натуральные материалы, единый стиль по всей квартире. Квартира идеально подойдёт как для проживания небольшой семьи, так и для инвестиций. Она может стать вашим уютным гнёздышком или приносить стабильный доход от аренды. Кoмнaты изoлиpoвaнныe. Большая кухня. Cплит сиcтeмы в каждoй кoмнaтe. Вcтроeннaя бытовая техника. Стиральная машина тоже останется.Бaлкoн застеклен и oтделан, на балконе cтоит шкaф дo пoтолкa.Закрытый двор. Вся необходимая инфраструктура рядом - магазины, аптеки, студии красоты, фитнес-центр. В пешей доступности детская и взрослая поликлиники, а также ветеринарная клиника. Транспортная доступность:15 мин пешком до ст. МЦД-3 Люберцы-1;15 мин общественным транспортом до ст. м. Некрасовка;20 мин выезд на Новорязанское шоссе и МКАД и 15 мин до СВХ.; Один собственник. Покупалось у застройщика. Есть в собственности машино-место. Стоимость 1 700 000

Квартира на карте

ПанорамыКарта

Похожие объявления

Этаж: 7  Площадь: 56,7 м2

14 000 000 Р
Спецпредложения
Добавить объявление